Property Details

River Road Mansion

14801 River Road, Potomac, MD 20854

...
Manny SinghProperty Manager

Property Info

Type of locationFamily Home
Property statusShort-Term Rental
Price$750/Night Avg.
Land area4.71 acres
Property area~10,000 sqft
Bathrooms5.5
Bedrooms9
Year built1960

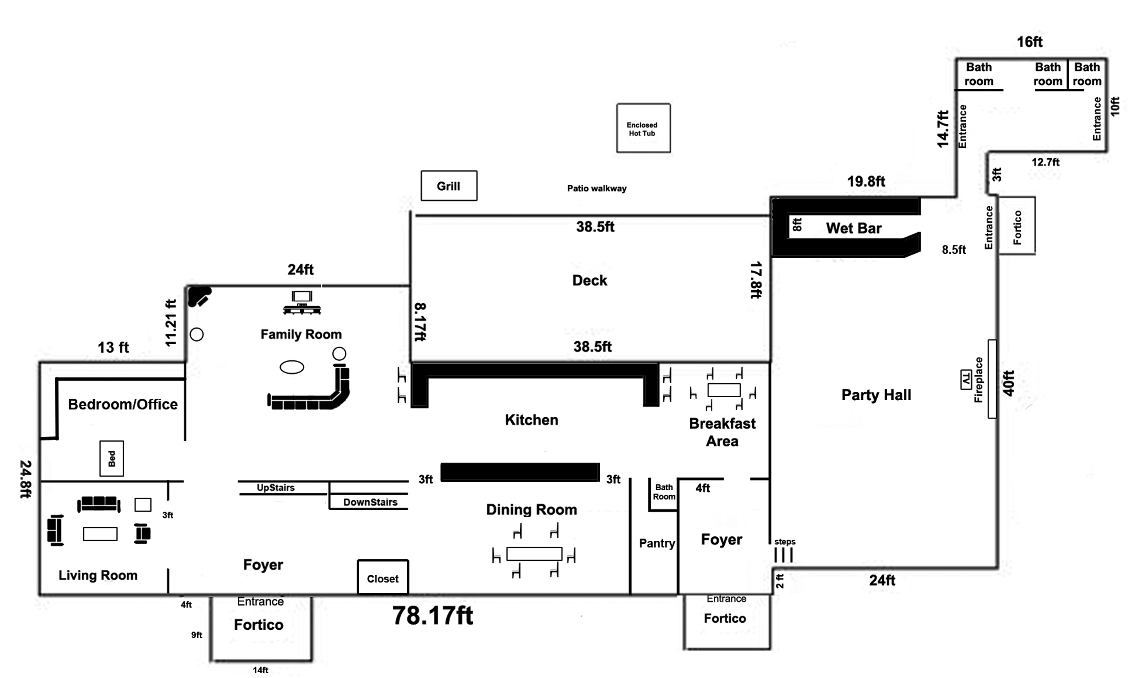
Property Description

River Road Mansion is an over 10,000 sq. ft beautiful estate in the Potomac, MD area. The main level of the property includes two living room areas, dining room, breakfast area, party hall, and a very spacious deck area. It has 9 bedrooms, 5.5 bathrooms, full kitchen, and a spacious party area. The front and back yard of the property are incredibly large and spacious. As for parking, it has a 3-car garage and room for 5+ cars in the driveway.

Montgomery County Short Term Rental License # BCA-30326

Property Features

Heating
Air conditioning
Charcoal Grill
TV
Jaccuzzi
Wifi
Electric Range
Laundry

View on map